群馬県内の貸倉庫・貸工場・貸地の情報満載(トップ) > 群馬のエリアで探す > 邑楽郡大泉町 > 西小泉 > 邑楽郡大泉町大字吉田1410 西小泉 貸倉庫
邑楽郡大泉町大字吉田1410 (西小泉) 西小泉 貸倉庫 詳細データ
この物件の物件番号は1356です。お電話(03-6260-6586)でお問合せの際は物件番号をお知らせ下さい。「群馬テナント.comを見て」とお伝えいただくと話がスムーズに進みます。
掲載の貸倉庫・貸工場・貸地の写真は拡大出来ます。
※不動産業者様へのご紹介は不可です。
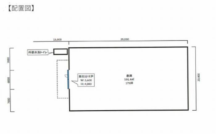
| 物件名 | 西小泉 貸倉庫 |
|---|---|
| 沿線/駅 | 小泉線 / 西小泉 |
| バス/徒歩 | バス:- / 徒歩:- |
| 所在地 | 邑楽郡大泉町大字吉田1410 |
| 賃料(坪・円) | 坪 2,860 円 (総額 511,940 円) |
| 共益費 | |
| 使用面積 | 179 坪 |
| 敷地面積 | 266.2 坪 |
| 礼金 | 2 ヶ月 |
| 敷金 | |
| 保証金 | |
| 構造 | 鉄骨造 |
| 竣工年 | 1985 年 |
| 所在階 | 1/1 階 |
| 接道状況 | 5m |
| 用途地域 | 準工業地域 |
| 駐車場 | 有 |
| 契約期間 | 1 年 |
| 現況 | 現空 |
| 備考 | トイレ |
| 貸倉庫・貸工場・貸地の事業用ポータルサイトNo.1 |
|---|
|
邑楽郡大泉町大字吉田1410(群馬県)の貸倉庫・貸工場・貸地をはじめ群馬全域の貸し倉庫・貸し工場・貸し土地を検索できます。邑楽郡大泉町大字吉田1410(群馬県)の事務所付貸倉庫、クレーン付工場、店舗倉庫、工業専用地域等、ニーズに合わせて簡単検索。邑楽郡大泉町大字吉田1410(群馬県)の貸し倉庫・貸し工場・貸地を貸したい方にはオーナーサポートシステムで無料にて査定・掲載いたします。邑楽郡大泉町大字吉田1410(群馬県)で貸倉庫・貸工場・貸し土地をご契約のテナント様には貸し倉庫・貸し工場の設計変更、造作のご相談・施工も承ります。貸倉庫・貸工場・貸地で移転・新規開設をするなら群馬地区最大級のテナント.com! |












