群馬県内の貸倉庫・貸工場・貸地の情報満載(トップ) > 群馬のエリアで探す > 太田市 > 国定 > 太田市新田大町600 国定 貸倉庫
太田市新田大町600 (国定) 国定 貸倉庫 詳細データ
この物件の物件番号は1358です。お電話(03-6260-6586)でお問合せの際は物件番号をお知らせ下さい。「群馬テナント.comを見て」とお伝えいただくと話がスムーズに進みます。
掲載の貸倉庫・貸工場・貸地の写真は拡大出来ます。
※不動産業者様へのご紹介は不可です。
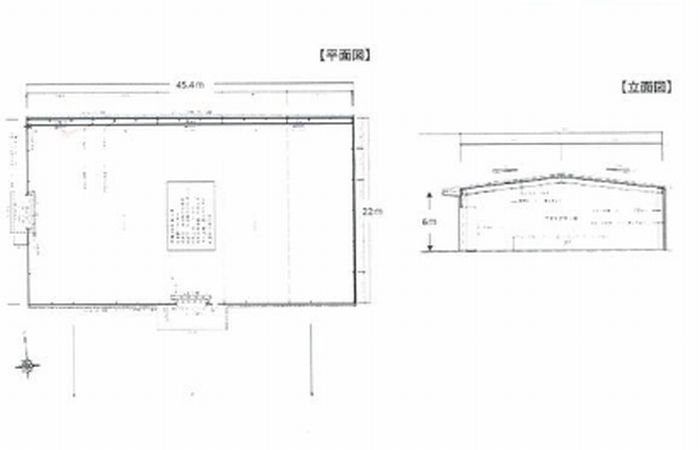
| 物件名 | 国定 貸倉庫 |
|---|---|
| 沿線/駅 | 両毛線 / 国定 |
| バス/徒歩 | バス:- / 徒歩:- |
| 所在地 | 太田市新田大町600 |
| 賃料(坪・円) | 坪 7,480 円 (総額 1,122,000 円) |
| 共益費 | |
| 使用面積 | 150 坪 |
| 敷地面積 | 坪 |
| 礼金 | 2 ヶ月 |
| 敷金 | 1 ヶ月 |
| 保証金 | |
| 構造 | 鉄骨造 |
| 竣工年 | 2021 年 |
| 所在階 | 1/1 階 |
| 接道状況 | |
| 用途地域 | 工業専用地域 |
| 駐車場 | 有 |
| 契約期間 | 5 年 |
| 現況 | 使用中 |
| 備考 | 危険品倉庫(第4類全種対応) |
| 貸倉庫・貸工場・貸地の事業用ポータルサイトNo.1 |
|---|
|
太田市新田大町600(群馬県)の貸倉庫・貸工場・貸地をはじめ群馬全域の貸し倉庫・貸し工場・貸し土地を検索できます。太田市新田大町600(群馬県)の事務所付貸倉庫、クレーン付工場、店舗倉庫、工業専用地域等、ニーズに合わせて簡単検索。太田市新田大町600(群馬県)の貸し倉庫・貸し工場・貸地を貸したい方にはオーナーサポートシステムで無料にて査定・掲載いたします。太田市新田大町600(群馬県)で貸倉庫・貸工場・貸し土地をご契約のテナント様には貸し倉庫・貸し工場の設計変更、造作のご相談・施工も承ります。貸倉庫・貸工場・貸地で移転・新規開設をするなら群馬地区最大級のテナント.com! |












